18
$2,600,000 Sale
Listed 4 hours ago
421 INDUSTRIAL ROAD
· 0
· 0.0
· 0
· 11566
Key Facts
Key facts for 421 INDUSTRIAL ROAD
Property Type
Commercial
Parking
Garage: No, 0 parking
MLS #
X12442405
Size
11566 sqft
Basement
-
Listed on
-
Lot size
-
Tax
-
Days on Market
-
Year Built
-
Maintenance Fee
-
Description
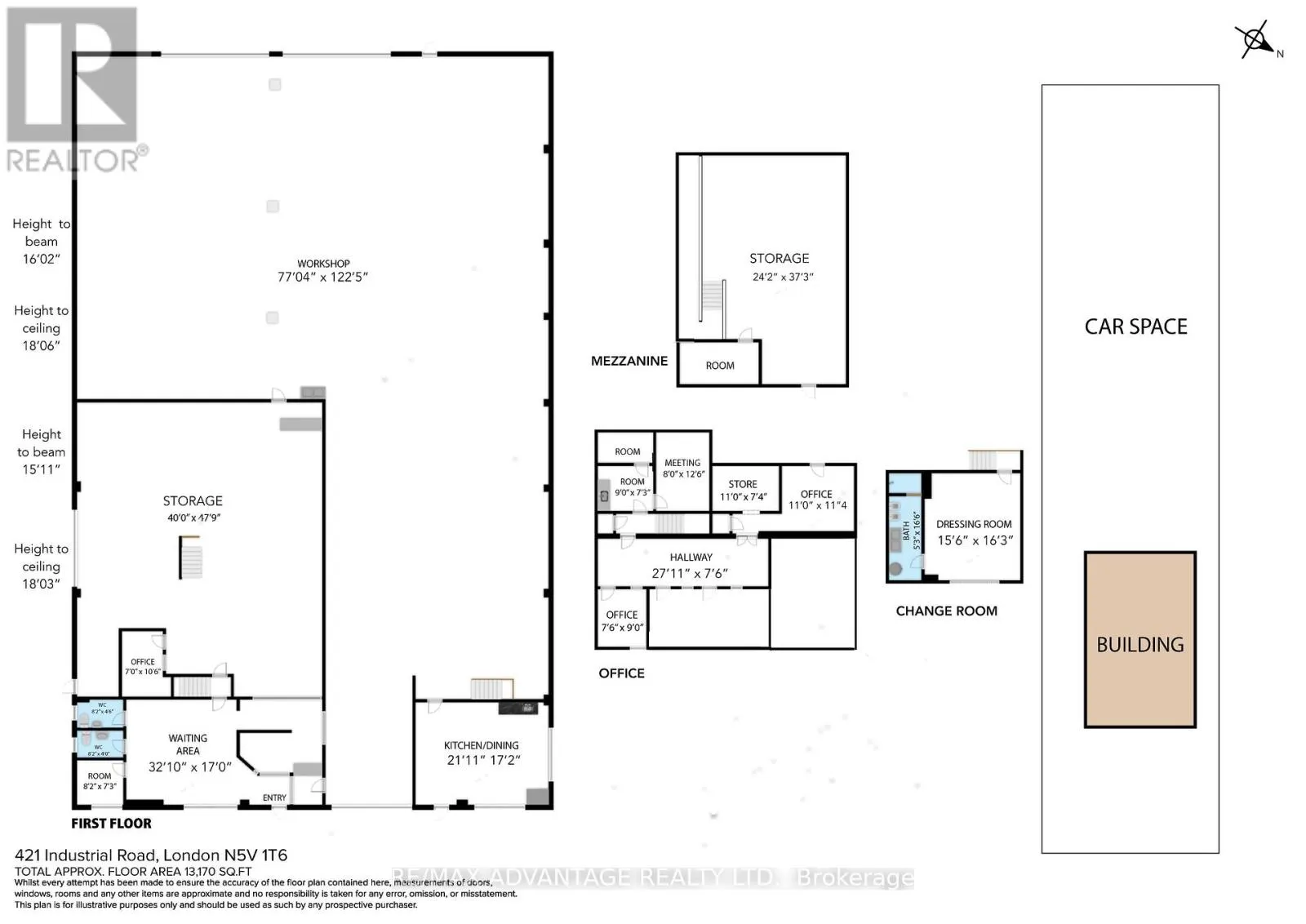
421 Industrial offers an exceptional opportunity to acquire a clean and well-maintained industrial building, encompassing 11,566 square feet, situated on a spacious 1.57-acre lot. This property features a secure enclosed compound. This investment offers the unique advantage of a leaseback arrangeme...nt from the current owner. The building contains 85% industrial with 15% office and ceiling height of 18 feet. The facility is also equipped with four grade-level drive-in doors. Strategically located just east of Veterans Memorial Parkway, the property enjoys convenient access to the London International Airport and nearby 401 & 402 highways. Recent upgrades include a newer roof, electrical updates, and a completed Environmental Report, providing peace of mind for potential investors. The prime location, well-designed layout, and favorable zoning ensure that this property represents a compelling investment opportunity for those looking to expand their portfolio. (id:10452)
Similar Properties (No results)
Listing courtesy of: RE/MAX ADVANTAGE REALTY LTD.
This REALTOR.ca listing content is owned and licensed by REALTOR® members of The Canadian Real Estate Association.